
Selskapet Trønderboliger vil bygge rekkehus med fem boenheter på ei 1,2 mål stor tomt i Rømmesbakkan. Politikerne ønsker konsentrert bebyggelse, men vil ikke gi utbygger noen snarvei. Det må lages reguleringsplan før endelig ja eller nei.
Trønderboliger har søkt om dispensasjon fra kravet om å lage detaljert reguleringsplan. Et enstemmig hovedutvalg forvaltning sier nei til å gi fritak. Samtidig heter det i vedtaket at kommunen er positiv til konsentrert bebyggelse. Nabo-protester Flere naboer har protestert kraftig mot planen om rekkehus på ei lita tomt midt i et etablert villastrøk nederst i Rømmesbakkan. De mener tegningene (bildet over) minner om et lagerbygg, frykter økt trafikk og mener det blir altfor lite uteareal. Trafikkstøy I vedtaket om å kreve reguleringsplan peker Orkdal kommune spesielt på at planen må vise nok leke- og uteareal, og at tre av fem leiligheter vil kreve støyskjerming pga trafikken fra E39 like nedenfor. Forslaget fra Trønderboliger innebærer at tomta blir mer bebygd enn det kommunens regler tilsier, og at bygget kommer nærmere veien Øvre Rømmesbakkan enn vanlig byggegrense. Trønderboliger har redusert antall leiligheter fra seks til fem. Naboer mener to boenheter er nok på denne tomta midt i boligfeltet. De aller nærmeste naboene i veien Ingridbakken har imidlertid sagt ja til forslaget. De får bedre adkomst. 
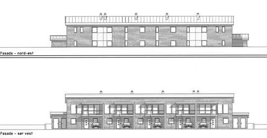
Skisse som viser planen for rekkehus med carport mellom veiene Øvre Rømmesbakkan og Ingridbakken rett over E39 på Bårdshaug Øst (Ill: 3D Arkitektur & Design). 
Den aktuelle tomta ligger rett over taket på dette verkstedbygget på Bårdshaug Øst.
Publisert 19.08.2014 |