
Grunneier Magnus Stadsnes har laget nye planer på branntomta ved Thamshavn. De omfatter et bygg på tre etasjer pluss parkeringskjeller.
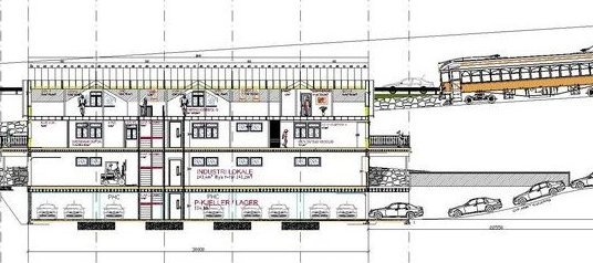
Bygningen er tenkt å skulle inneholde en generasjonsbolig på nesten 400 kvm og lokaler for kontor og industri. Huset som sto på tomta brant ned for ett år siden. Da hadde det lenge versert uenighet mellom eier og Orkdal kommune om reguleringsbestemmelser og retten til å ha flere boenheter i bygget. Den foreliggende planen beskriver en boenhet, og store lokaler til næring. Stadsnes ønsker å kjøpe til et område rundt hustomta. Det ligger inneklemt mellom veier og industri i dag. Salvesen & Thams er interessert i å selge. (Mer tekst under skissen, som viser plassering i forhold til E39 og fjorden rett sør for Elkem Thamshavn): 
Salvesen & Thams har søkt Orkdal kommune om å få omregulert det aktuelle området fra forretning/kontor/lager til bolig med tanke på salg til Stadsnes. I søknaden poengterer selskapet at området rundt tomta er "innelåst" av veger og Thamshavnbanen, og følgelig uegnet for næring. Derfor ønsker Salvesen & Thams å selge det som tilleggsareal til Stadsnes. Her er et tverrsnitt av det planlagte nybygget: 
Publisert 08.01.2011 |