
Selskapet VIBO Prosjektutvikling foreslår å omregulere området mot sjøen ved Strandheim fra park til bolig. Området ligger nå brakk mellom Havneveien og fjæra. VIBO ser for seg at det er mulig å bygge et unikt boligområde helt nede ved fjorden.
VIBO ønsker også nye boliger i Nerviksbakkan og ved Shell.
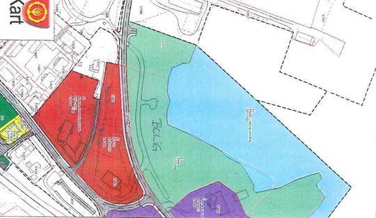
Hovedområdet ved Strandheim ser du på bildet over: Det store arealet mellom Havneveien og sjøen bak Dampmaskinhuset - mellom Langbrua til venstre og eiendommen til Jan Brevik utenfor bildet til høyre. Forslaget kommer i forbindelse med at kommuneplanens arealdel skal rulleres (fornyes). Dampmaskinhuset VIBO foreslår samtidig at tomta vest for Dampmaskinhuset (ved Havneveien) omreguleres fra museum til bolig. Nye eiere kjøpte Dampmaskinhuset av av Salvesen & Thams for å åpne blant annet veteranbilmuseum, men har senere søkt om å få lage to leiligheter i andre etasje. Dampmaskinhuset er det eneste produksjonslokalet som står igjen etter Strandheim Bruk - Thams-selskapet som var hjørnestein på Orkanger og pioner innen ferdighusproduksjon på verdensbasis.
Kartet viser mulig boligområde i grønt (park i dag) og rødt (museum,gnr. 1/461). Det er snudd mot vest. Langbrua ligger øverst til høyre.
Bolig for å få til park Orkanger Vel har tidligere foreslått å omregulere deler av området til boligformål, men dette ønsket ikke kommunestyret. Velforeningas argument var den gangen at man kan få opparbeidet deler av området til et sjønært, parkmessig anlegg for allmenheten ved å legge ut en del av det til boliger. Tomta mellom Havneveien, sjøen og Langbrua har stort potensial, men blir ikke utnyttet. Kommunen har blant annet laget en visjon for utendørsbad. Planen ligger i en skuff sammen med mange andre. Grunnforholdene i området er vanskelige. Selv Jehovas Vitner ga opp å bygge der for noen år siden. Salvesen & Thams eier tomta.
Nerviksbakkan VIBO foreslår også å omregulere et område i Nerviksbakkan til boligformål. Dette blir i så fall en utvidelse av det eksisterende boligfeltet. Den aktuelle tomta strekker seg fra lekeplassen i Nerviksbakkan og i en fordypning/bekkedal opp bakkan mellom dagens bebyggelse. Argumentet er at det er effektivt å utnytte eksisterende infrastruktur ved å utvide boligområdet. Salvesen & Thams er grunneier.
Bolig eller motell på Bårdshaug VIBOs tredje innspill: Å omregulere ei tomt avsatt til motell bak Shell på Bårdshaug til boligformål. Argument: Det er ikke lenger aktuelt å bygge motell. Orkdal trenger boliger sentralt, og man får utnyttet eksisterende infrastruktur - veg, vann og kloakk. Jomar Lie er grunneier.
Publisert 06.03.2013 |