
For første gang på mange år kan det komme nye eneboliger langt nede i Hovsbakkan. VIBO Entreprenør søker om å få sette opp tre hus på ei ledig tomt rett under Storåsfeltet - nedenfor vegen på bildet.
Utsikten blir bra. De nye boligene får adresse Øvre Hovsbakkan 17, 19 og 21. Det er bratt og grunnforholdene er krevende på stedet, men det er ikke kvikkleire der. VIBO planlegger avkjørsel i en liten blindvei i svingen helt nederst i Storåsfeltet (tegninga under). Toppen av illustrasjonen er nedover bakkan med utsikt mot Orkanger.
Tomtene er noen av ytterst få som har blitt liggende ubebygd etter den storstilte utbygginga i Hovsbakkan på 1970- og 1980-tallet. Reguleringsplanen i området er fra 1979. Det har hersket uenighet om rettigheten til tomtene i lang tid. I
byggesøknaden står det at det fortsatt er uavklarte spørsmål knyttet til
rettigheter mellom VIBO Prosjektering, Bonor AS (Drøbak) og Orkdal
kommune. Tidligere forelå det planer om å bygge rekkehus på stedet. Orkdal kommune prioriterer konsentrert bebyggelse med høy utnytting av knappe arealer. Samtidig er stor det etterspørsel etter sentrale eneboliger. Derfor blir det nå regulert et større område i Joplassen/Perbakkan blant annet for villabebyggelse. Det er liten byggeaktivitet på Orkanger. Folketallet i Orkdal vokser nesten ikke for tida. Men prisene på eneboliger skyter i været. I Parkveien gikk nylig en bolig for godt over 4 millioner. Søster Signes vei 6 like ved ligger ute for salg med prisantydning 3 350 000 - se finn.no.
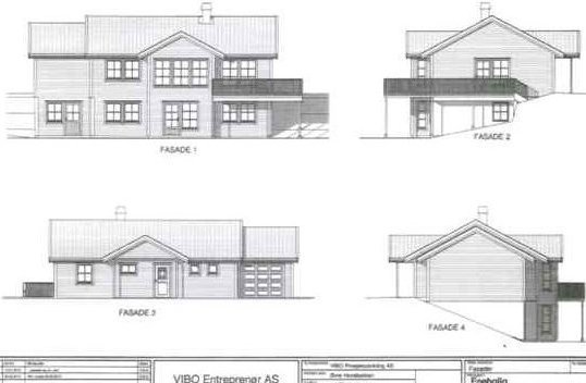
Også i bakkan har prisene på eneboliger steget. Slik ser VIBO for seg tre nye villaer i Hovsbakkan: 
Publisert 12.07.2012 |