
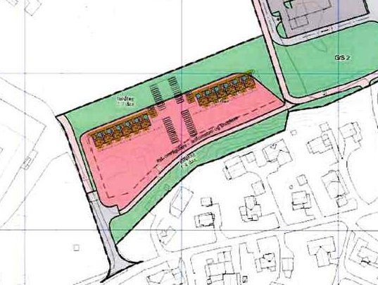
Et enstemmig hovedutvalg teknikk går inn for 24 boenheter over to etasjer på Endelig Heim-tomta i Moan. Politikerne valgte blant fem alternativer - med fra fem til 24 boliger. De foretekker det mest omfattende (skissen). Dette utnytter arealet best.
Endelig Heim startet med en plan om å bygge det kommunen noe ufølsomt kalte fem frittstående "rusboliger" - og ser nå ut til kunne ende som et tett boligområde. Omsorgsboliger skal etter planen inngå i prosjektet. Geitastrandvegen skal ha fortau før trafikk settes på der, men det er planlagt ny vei via OTI. Rådmannen ga politikerne fem alternativer for utbyggingsmønster i et forsøk på å komme videre. Oddvar Kjøren (Ap) foreslo alternativ 4. Det vil si fortettet småhusbebyggelse i to etasjer. 24 boenheter. I vedtaket heter det at kommunen skal innhente tilbud på arkitekttjenester. Det enstemmige vedtaket onsdag vitner nå om partipolitisk fred rundt prosjektet.
Bak vedtaket i hovedutvalg teknikk står: Jørgen Indergård og Ingrid Fagerli (Orkdalislista), Kari Tronvoll (KrF), Kari Garberg (Venstre), Gunnar Husby (Sp), Emir Kaniza og Oddvar Kjøren (Ap). Kjøren fremmet forslaget.
Annet: I samme møte etterlyste Jørgen Indergård en trafikksikkerhetsplan. (Trafikksikkerhetsutvalget er for øvrig nedlagt, og Orkanger Vels erfaring er at det har blitt vanskeligere å ta opp spørsmål om trafikksikkerhet.) Nils Arne Sletvold fra administrasjonen spurte om OIF (desidert største bruker) bør være representert i brukerutvalget ved utbygging av Orklahallen som nå starter. Konklusjon: Idretten er representert via idrettsrådet. Kari Tronvoll tok opp spørsmål om trafikkskilt og andre skilt skjult bak busker og trær - og dårlige trapper i Elvestien omsorgsboliger.
Publisert 19.10.2012 |