
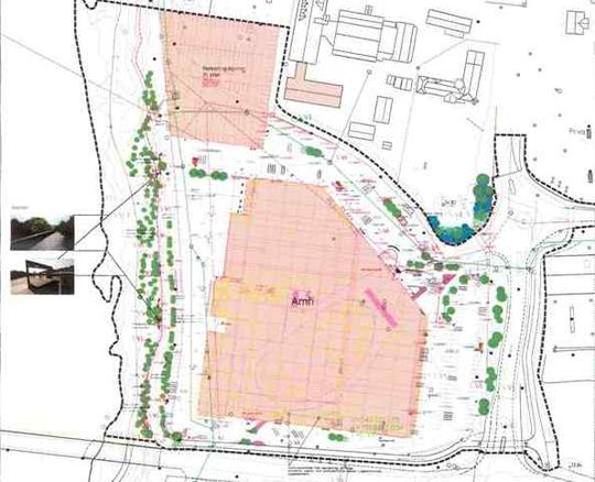
Her ser du hvordan det nye Amfi kommer til å fylle nesten hele dagens parkeringsplass. Men utbyggerne vil prøve å gjøre omgivelsene pene.
Skissen er laget av Solem Arkitektur. Den beskriver først og fremst utomhusplanen - de nærmeste omgivelsene. Nesten alle detaljer er nå på plass. Protester fra Bårdshaug Herregård mot tursti og rundkjøring er ute av verden, og det er inngått avtale med Orkdal kommune om parkeringshus i tre plan. Det øverste rosa feltet markerer parkeringshuset. Det strekker seg inn under dagens p-plass ved rådhuset. Mot ny E39 (ved Polet) blir det nesten ikke plass til parkering lenger. Foran Amfi er det tegnet inn 105 plasser, men de fleste kommer inne i det store p-huset. Skissen viser sykkelparkering flere steder - både på grasplen og under tak. På baksida av Amfi blir det foreslått ny vegetasjon som vil danne en allé langs gang- og sykkelvegen på elvepromenaden. Utbyggerne foreslår blant annet klynger av rogn, selje og hegg. Det er også tegnet inn terrasser med benker med utsikt mot elva. Her kommer trolig den største sykkelparkeringa; 60 plasser på ett sted. Planen skal bidra til å knytte Orkdalsveien til elvepromenaden med en turveg langs hagen og hotellet ved Bårdshaug Herregård. Dette førte til protester fra hotellet, som frykter innsyn på rommene - men kommunen har avvist protestene. Coop Orkla Møre legger opp til en plan som retter seg etter prinsipper vedtatt av Orkdal kommune; prioritering av sykkel, turveger og miljø, og minst mulig parkering på bakkeplan for å spare knappe sentrumsarealer. Det siste tvang seg uansett fram ved Amfi fordi det ikke finnes plass til både utbygging og omfattende bakkeparkering - i mosetning til OTI-området. OTI slapp som kjent kostnaden ved å bygge p-hus etter at det politiske flertallet snudde. Begge sentrene ønsker en tilnærmet fordobling av butikkarealet. Amfi har så langt vunnet drakampen om magnetene: Hennes & Mauritz og Clas Ohlson. De trekker ikke bare kunder, men også andre leietakere. 
Publisert 29.10.2012 |