
Trondheim Havn sier til Orkdal kommune: * Gammelosen blir et bedre friluftsområde hvis vi bygger ut havna mot Nerøra. * Containertrafikken har eksplodert i år (noe som merkes på Havneveien). * Havna må bygges ut mot Råbygdfjæra - kommunestyrets forslag går ikke.
Dette er tre punkter fra Trondheim Havns høringsuttalelse til ny kommuneplan. I likhet med Fylkesmannen, Naturvernforbundet, velforeningene og mange andre, leverer også Havna selv innspill før Orkdal kommunestyre skal avgjøre omfanget av utbygging. GRØNØRA ØST Her vil Havna bygge seg 50 meter nærmere Gammelosen/Nerøra, og 300 meter ut over fjorden. Særlig støy, visuell forurensing og skader på fugleliv og dyreliv har skapt protester. Havna skriver:
- Utbygging vil ikke forringe, men forbedre turområdet Gammelosen.
- Tursti kan utvides langs det utbygde området, med badebrygge og fiskebrygge.
- Foreslår klatrevegg i støyskjermen.
- Er i dialog med Nerøra Vel om tiltak.
- Utbygging inne i havnebassenget (foreslått av Orkla Shipping & Trading på folkemøte for å skåne bomiljø) er uaktuelt. Gir ikke mer kaiplass, og fører til store problemer i anleggsperioden.
Havna legger bare opp til et 5 meters belte med "støyvegg" og trær som skjerming. Orkanger Vel har krevd en høy jordvoll - ikke en vegg - og tursti som en forlengelse av turdraget rundt Gammelosen. Det tar mye mer plass enn 5 meter - trolig ca 15 meter.

Den grønne stripa markerer område for sti, trær og vegg. Utstikkerne er ei foreslått badebrygge og fiskebrygge. Utbyggingsområdet ligger rett utenfor renseanlegget ved brua i Gammelosen. Rett øst for området er det tørt land på fjære sjø. Det framgår ikke av illustrasjonene.
TRAFIKKEN EKSPLODERER Trondheim Havn skriver at containertrafikken på Orkanger har økt med ca 30 prosent (!) siden 2013 - altså hittil i år. Det innebærer at vi nå ligger på ca 20 000 containere per år. I 2009 var antallet 9 000. Det heter at flere store aktører er interessert i å bruke Orkanger til containertransport.
Havna omtaler ikke trafikken og eventuell stenging av Havneveien selv. Men en av konsulentene anbefaler stenging. Containerne utgjør bare en del av havnetrafikken. Stål, tømmer, kull, annet industrigods og landbruksråvarer går i store mengder gjennom Orkanger.
Skisse av plan for utvidet Grønøra Øst: Mørk blått er sannsynlig område for mudring for store skip. 15, 5 da innenfor grønn strek er utbyggingsområdet fra sjø til land. Mye av det blå utenfor Gammelosen er tørt land annet enn på flo sjø.
THAMSHAVN NORD I STEDET FOR GRØNØRA FYlkesmannen har midlertidig stoppet kommunens mulighet til å fatte vedtak i saken (såkalt innsigelse). Det skyldes de alvorlige skadevirkningene utbygging på Grønøra kan få for naturverdier og bomiljø. Fylkesmannen krever en seriøs utredning av et område nord for Thamshavn som alternativ. Trondheim Havn avviser Thamshavn Nord med følgende begrunnelse: - Dybder og strøm gjør det vanskelig å fylle ut nok areal i sjøen.
- Grunnforhold, store bergmasser og vegsystem (E39) "hindrer" utbygging av nok areal på land.
Havna har det dessuten travelt med å starte utbygging pga plassmangel.
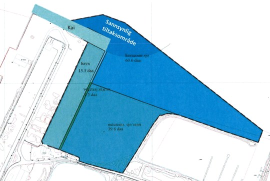
GRØNØRA VEST/RÅBYGDFJÆRA Flertallet i Orkdal kommunestyre har så langt ønsket en mindre utbygging her enn hva Havna ber om. To årsaker: - Skåne bomiljøet i Råbygda mot støy og blokkering mot fjorden.
- Hindre skader på og ved det sårbare verneområdet Råbygdfjæra.
Her er det trolig duket for politisk kamp, fordi: Trondheim Havn avviser kategorisk forslaget fra flertallet i kommunestyret. Havna mener den må ha nok kaiplass til å ta inn tre store skip samtidig. Kommunestyrets løsning vil bare gi plass til to. Trondheim Havn legger fram to nye alternativ. Begge vil kreve litt mindre areal enn Havnas opprinnelige forslag, og litt mer areal enn kommunestyrets forslag. Men forsøket på kompromiss vil trolig være svært omstridt, fordi begge forslag:
- Forutsetter at det bygges en utstikker mot Råbygda.
- Legger opp til utbygging inntil verneområdet.
- Vil gi kaifront mot vest (Råbygda), altså at skip blir liggende mer eller mindre i siktlinje fra boligområder.
Orkdal kommunestyre skal etter planen vedta omfanget av utbygging allerede 24.september. Mye tyder på at protesten (innsigelsen) fra Fylkesmannen (staten) vil gjør at det kreves mer tid. Alt om om Havnas innspill finner du på Trondheim Havn.
Nytt forslag 1 fra Trondheim Havn - Grønøra Vest.
Nytt forslag 2 fra Trondheim Havn - Grønøra Vest.
Publisert 13.07.2014 |