
16 av 46 tomter er solgt i boligfeltet Joplassen på Orkanger. De første villaeierne starter trolig bygging i høst. Akkurat nå legges det fram kabler for strøm, gatelys, TV og bredbånd. Utsikten blir upåklagelig...
Ikke siden 1980-tallet har det vært omfattende bygging av eneboliger på Orkanger. Nå skal et nytt villastrøk ta form. Joplassen Utvikling (Salvesen & Thams) er snart ferdige med å bygge infrastruktur: * Veisystemet på Joplassen er klart, men asfaltering skjer først til neste år. * Vannledning er ført fram til nytt høydebasseng ved Lyshusflata litt lenger oppe ved Ulvåsveien. * Avløp ned til Orkanger er ferdig lagt. Området er regulert til både eneboligtomter og tettere bebyggelse med tomannsboliger/rekkehus og blokker. Eneboligtomtene er lagt ut for salg og bygges ut først. 16 tomter er solgt, 30 er ledige. Her får folk bygge boliger tegnet av arkitekt til en lavere pris enn hva en brukt enebolig koster i og nær Trondheim.
Det markerer en milepæl på Orkanger når husbygging tar til igjen i stor skala i Bakkan. Trolig er de første i gang å bygge i løpet av høsten.

Joplassen-feltet sett fra motsatt side av fjorden. Bildet over viser at området er stort og ligger høyt oppe, men samtidig er avstanden i rett linje ned til Nerviksbakkan og Orkanger sentrum kort. En oppgradering av turdraget her vil gi kjapp skolevei for barn som velger å gå, og for andre når de parkerer bilen. Mer gåing er i tråd med overordnet politikk i Orkdal. Dette kan bli en av stedets beste snarveier. Les mer om tomter på Joplassen.

Her ser du øvre og nedre vei på Joplassen. Nærmest på bildet er det planlagt konsentrert bebyggelse, og eneboliger videre nordover. Kraftlinja til Thamshavn flyttes fra Hovsbakkan/Joplassen og inn på marka for å gi plass til flere boliger. Stolpene til ny linje kommer til Orkanger rundt månedsskiftet august/september. De er produsert i Kanada. Man må til Nord-Amerika for å finne høye nok trær. Ny linje skal være på plass i mars 2015. Nøyaktig når omkopling skjer avhenger av driftsstans hos Elkem. 
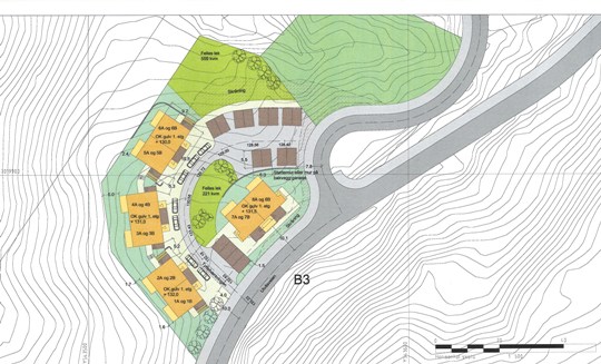
Tettere bebyggelse er planlagt ved avkjørselen fra Ulvåsveien. Denne skissen viser en mulig løsning med tomannsboliger. Ill: Nordbohus.
Franslykkja Salvesen & Thams bygger også ut boligblokk på Franslykkja ved Rosenvik. Her er det snart utsolgt. 19 av 25 leiligheter er omsatt før bygget er ferdig. Det nye leilighetsbygget reiser seg fort. Fransklykkja skal stå ferdig i mai 2015. 
Her kommer 25 nye leiligheter.
Publisert 13.08.2014 |