
Det skulle være et bygg med forretninger på bakkeplan og leiligheter over. Nå søker Vormstad utbyggingsselskap om å få bygge ei ren boligblokk på fire etasjer rett bak Orkdal sparebank.
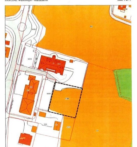
Kartet over viser den aktuelle tomta innenfor stiplet linje. Sparebanken ligger til venstre og det såkalte postbygget øverst. Aller øverst er rundkjøringa ned til OTI.
Vormstad utbyggingsselskaps planer på tomta er tidligere stanset av byggestoppen under Orkdal 2040. Det har også vært uenighet om høyden på bygget. Eierne la for noen år siden ut leililgheter for salg, men stoppet prosjektet.
Nå får politikerne bruken av tomta til behandling igjen i hovedutvalg forvaltning onsdag. Denne gangen gjelder det en søknad om å slippe kravet om næring i første etasje, og i stedet bygge kun boliger. Rådmannen er i utgangspunktet positiv. Saken har prinsipiell betydning fordi den berører det avgjørende spørsmålet: Skal den utpekte "bykjernen" bestå av næringslokaler på bakkeplan eller - i ytterste fall - ende som et rent boligområde? Orkdal 2040 hadde som mål å skape et forbilledlig sentrum - kandidat til Statens bymiljøpris. Men vedtakene i etterkant peker i retning av mest boliger, mens handel og møtesteder legges til kjøpesentrene Amfi og OTI: * Frislipp på Amfi og OTI er vedtatt. Forslag fra Ap om utbygging av deler av Rømme Øvre først (rekkefølgebestemmelse) ble nedstemt av det politiske flertallet. * Åpning for langt større områder med rene boligblokker på Rømme Øvre enn tidligere planlagt er vedtatt i år. * Nylig ble det gikk OK til bolig i halvparten av første etasje i bygget Orkdal sparebank planlegger inntil Orkdalsveien vis a vis dagens bankbygg. * Og nå trolig kun boliger i nytt bygg bak sparebanken. Der er det i dag krav om næring for å skape dybde i sentrum - og ikke bare en forlenget tarm av ei handlegate. Uoffisielt: I det politiske miljøet ser man det som urealistisk å skape et vitalt sentrum på Rømme Øvre når både Amfi og OTI langt på vei skal fordoble butikkarealet. Markedet får fortsatt bestemme stedsutviklinga.
Det politiske flertallet har også konsekvent avslått å kjøpe eiendom i det eksisterende sentrum for å styre utviklinga. Hans Kringstad
Publisert 10.09.2012 |